Student's Projects WiSe 24/25

A compilation from the courses of the EIK department.

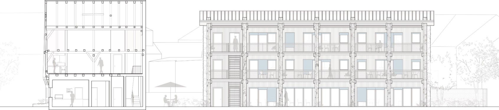
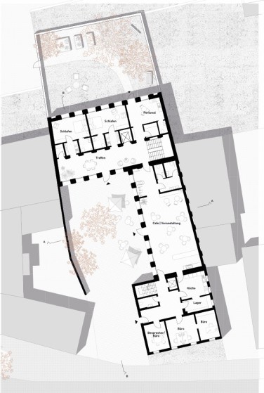
Natural stone has shaped architecture for centuries, before industrial materials transformed global building culture. Today, natural stone is once again gaining attention—not only for its design potential but also for its contribution to decarbonizing the construction sector. In Hallstadt, a contemporary residential building was designed that integrates harmoniously into its context through a load-bearing structure made of local stone. The project was developed in close collaboration with the Bamberg Natural Stone Works and the City of Hallstadt, and was part of an ideas competition. The building responds to the needs of the local Caritas organization: communal living, a multi-generational café, and a multifunctional space for the village community.