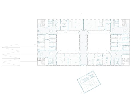
Bestandsbauten sind CO2 Speicher, aber ebenso speichern sie eine soziale und baukulturelle Identität. Wenn die Struktur und der Erhaltungszustand veraltet sind, wird jedoch häufig der Abbruch als einzige Lösung angesehen. Das Gesundheitshaus in München, ein typischer Verwaltungsbau der 60iger Jahre, gilt als verbraucht und soll durch einen Neubau ersetzt werden. Aber es gibt auch heftige Kritik am Ersatzneubau, das Großprojekt wird seit über 15 Jahren diskutiert. Derzeit wird das Gebäude mit einer Zwischennutzung aus Ateliers, Ausstellungsflächen und Gastronomie als Kunstlabor bespielt. Wir möchten in unserem Entwurf untersuchen, wie die Zwischennutzung in eine Dauernutzung umgewandelt werden kann. Dafür soll das Gesundheitshaus genau hinsichtlich seiner Potentiale und Defizite analysiert, umgebaut und auf dem Grundstück nachverdichtet werden. Es soll ein raffinierter und eigensinniger städtischer Kosmos entstehen, der den Bestandsbau als kulturelle Ressource feiert und Identität fortschreibt.
Lehmbau kann einen zentralen Beitrag für die Architektur im Klimawandel leisten. Dennoch werden Lehmbauten oft als experimentell und ökologisch überambitioniert eingestuft. Dabei ist auch in Hessen der Lehmbau nicht neu: In Weilburg an der Lahn befinden sich über 20 Gebäude, die im 19. Jahrhundert in Pisé-Bauweise (Stampflehm-Bauweise) errichtet wurden. Diese Gebäude haben wir in unserem Seminar besucht und dokumentiert.. Als Auftakt für einen Pisé-Pfad, welcher die historischen Gebäude in einem Rundgang kommentiert, wurde eine kleine Lehmbauwerkstatt für Seminare entworfen.
 
 
 
 
 
 
 
 
 
 
 
 
 
 
 
 
 
 
 
 
 
 
 
 
 
 
 
 
 
 
 
 
 
 
 
 
 
 
 
 
 
 
 
 
 
 
 
 
 
 
 
 
 
 
 
 
 
 
 
 
 
 
 
 
 
 
 
 
 
 
 
 
 
 
 
 
 
 
 
 
 
 
 
 
 
 
 
